Three Bears Cottage, The Corniche, Sandgate, Folkestone, CT20

For Sale - Freehold - £595,000

Photo 2

Land, Freehold

An exciting opportunity to acquire a virgin plot, already cleared of the original dwelling, totalling circa of 0.3 of an acre in a coveted location on Sandgate's picturesque hillside from where the replacement dwelling will command a stunning southerly panorama of sea and to the coast of France on a clear day. The plot is large enough for the development of two smaller houses if one large house, as designed, is not required (subject to consents and approvals being obtained).

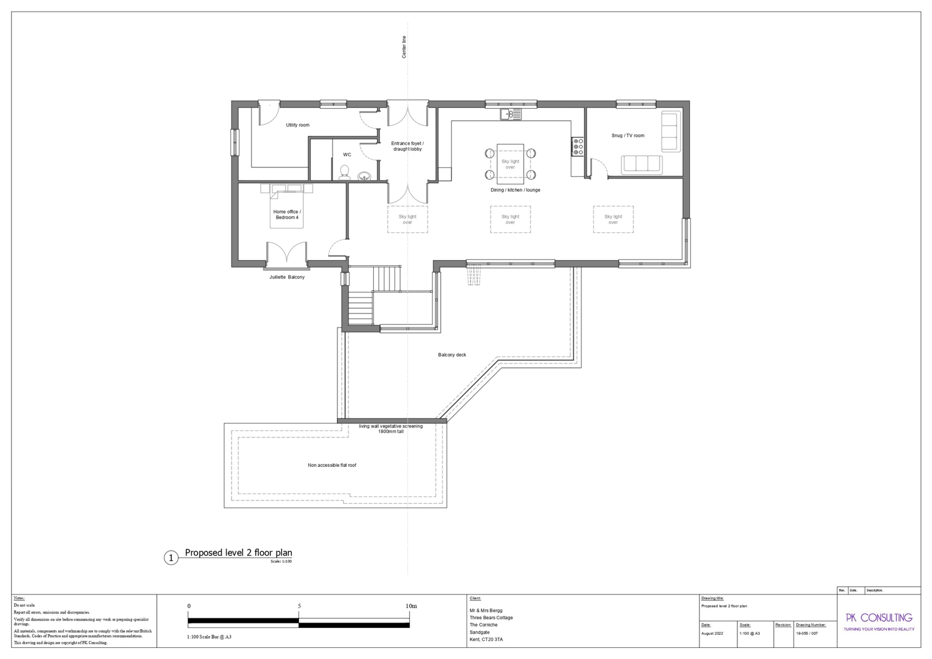
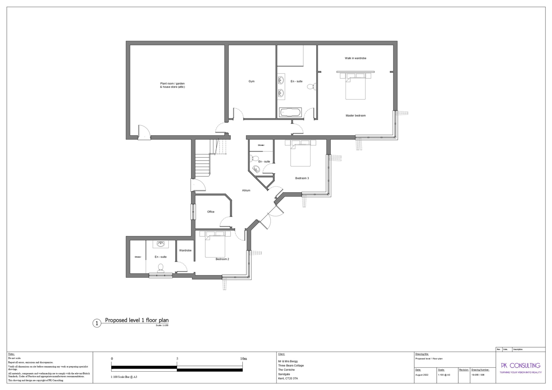
The site is sold with the benefit of planning approval which, although recently lapsed, has been reapplied for under application number 26/0412/FH, for the erection of a superb detached two storey contemporary dwelling which has been considerately designed to compliment and enhance the site and to be considerate of neighbouring dwellings (The site is large enough for two smaller houses). The replacement dwelling has been designed to maximise the stunning southerly aspect with far reaching views of the sea and to the coast of France on a clear day which will be enjoyed from all of the principal rooms. The accommodation will comprise an entrance at first floor level leading to a lavish open plan kitchen/dining/living space designed to compliment a modern lifestyle with expansive glazing opening to a large sea facing roof terrace, a separate snug, cloakroom and the fourth bedroom. There is also a shower room and utility room on this level. The ground floor comprises a generous part double height hallway leading to three double bedrooms, each with en-suites, a gym and an office. The property will also benefit from off street parking and generous gardens, and for which plans have been drawn by Ivy & Whyte of Hythe. The original plans can be viewed at www.folkestone-hythe.gov.uk using planning reference 23/1832/FH.


Photo 4 Photo 3 Photo 4 Photo 5 Photo 3 Photo 7 Photo 2 Photo 2 Photo 6
Branch Address
49 High Street<br>Hythe<br>Kent<br>CT21 5AD
Contact
A: Lawrence & Co
T: 01303 266022
E: findahome@lawrenceandco.co.uk
Reference: LAWR_005304
IMPORTANT NOTICE
Descriptions of the property are subjective and are used in good faith as an opinion and NOT as a statement of fact. Please make further specific enquires to ensure that our descriptions are likely to match any expectations you may have of the property. We have not tested any services, systems or appliances at this property. We strongly recommend that all the information we provide be verified by you on inspection, and by your Surveyor and Conveyancer.