3 Bedroom Penthouse  For Sale £875,000

Stunning Penthouse Apartment

Enjoying panoramic sea views

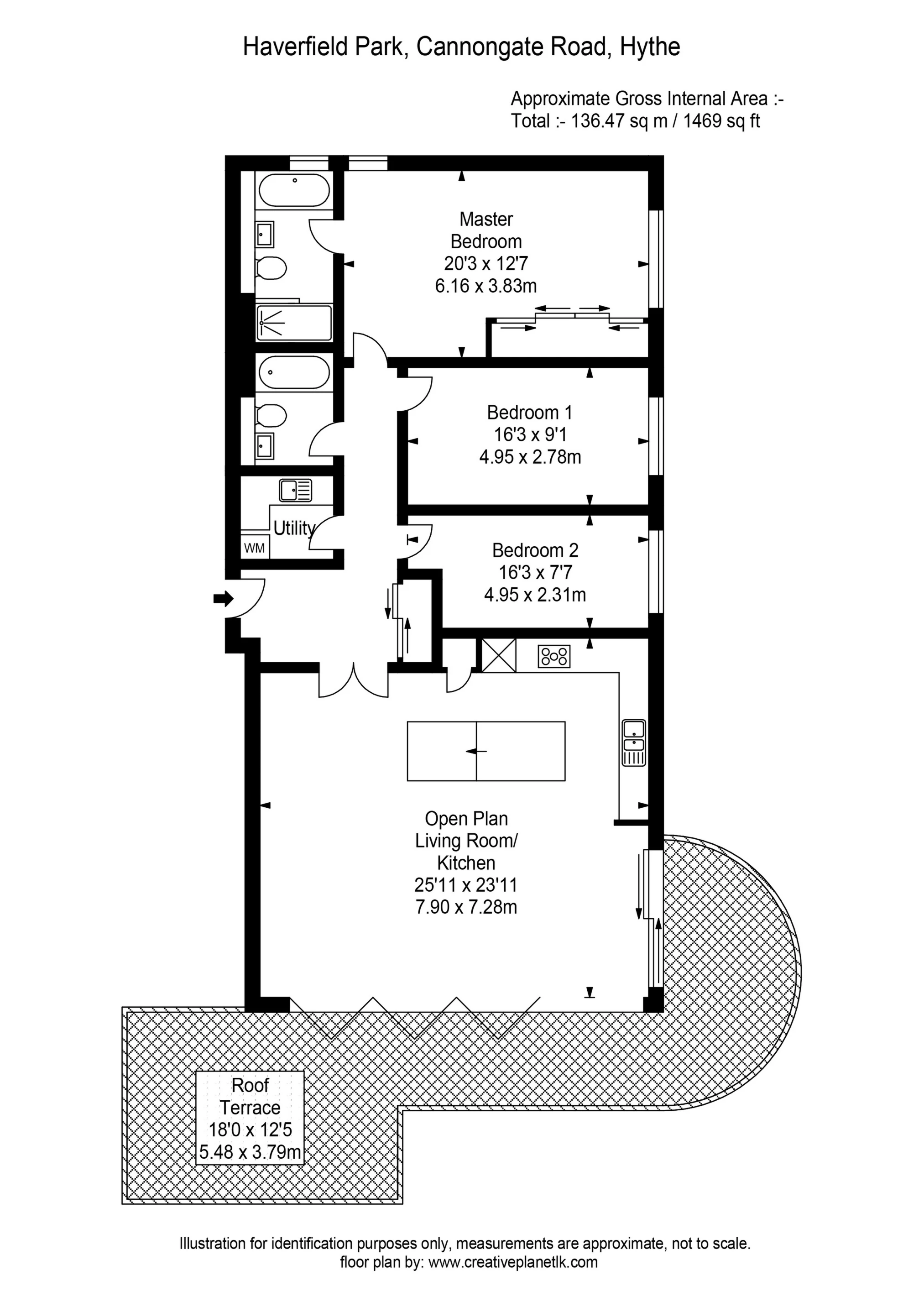
Spacious accommodation totally approx 1469 sq ft

Open plan kitchen/dining/living space

Generous private roof terrace

Three double bedrooms (principal with en-suite)

Bathroom

Utility room

Two covered parking spaces

NO ONWARD CHAIN

EPC Rating B

Council Tax Band E, Folkestone & Hythe

Leasehold & Share of Freehold

DESCRIPTION
Haverfield Park is a unique development of three traditional houses and eight modern apartments, all enjoying an elevated position on Hythe's picturesque lower hillside from where they enjoy breathtaking views over the town and of the sea.

The Penthouse, served by a lift, provides bright and spacious accommodation designed to complement a modern lifestyle. This comprises an entrance hall with ample storage, a large open plan living space incorporating a high specification kitchen and with bi-folding doors flooding the space with light and uniting it with its 455 sq ft roof terrace from where wonderful sea views can be enjoyed, three double bedrooms, the principal with en-suite bathroom, a guest bathroom and a utility room. Two allocated, covered parking spaces.

The scheme, built in 2019, has been beautifully conceived by award winning Keith Barker Design who have brought an imaginative concept to life with the apartments designed to complement this particularly special setting. A green sedum roof helps the apartments blend into the landscape and the imaginative use of circular balconies creates a striking aesthetic as the building cascades down the hillside. The apartment has been lavished with the use of high-end materials, a Hacker designed kitchen manufactured in Germany and generous glazing flooding the interior with light. The finish is to a superb specification with meticulous attention to detail throughout.

For room sizes please refer to the floor plan.

SITUATION
Set in an exclusive location on Hythe's picturesque lower hillside, Haverfield Park is well situated to take advantage of all the wonderful facilities Hythe enjoys. The wonderful wide promenade and long stretches of safe beaches overlooking the English Channel is within walking distance as is the historic Royal Military Canal and bustling High Street offering a variety of individual shops, boutiques, cafes and restaurants. The town is also well served by four supermarkets including a Waitrose. There are many first class recreational facilities within the vicinity including golf courses, tennis, bowls, squash and cricket clubs together with The Hythe Imperial Hotel with spa, swimming pool and gym.

Communications are excellent with the Channel Tunnel Terminal being within a short drive and providing fast links to the continent, Folkestone West mainline railway station (around 5 miles distant) where the High Speed Link to London, St Pancras can be boarded (journey times of around 53 minutes) and Junction 11 of the M20 within around 3 miles. There are also bus stops nearby offering frequent services to the surrounding areas.

Location

Floor Plan

Floor Plan

Property Images

Terrace
Setting
Living space
Living space
Living space
Living space
Kitchen
Living space
Kitchen
Kitchen
Living space
Terrace
Entrance hall
Utility room
Principal bedroom
Principal bedroom
En-suite
Bedroom 2
Bedroom 2
Bedroom 3
Bathroom
Entrance hall
Terrace
Front
Terrace
Views

Arrange a Viewing

Arrange a Viewing

Mortgage Calculator

Mortgage Details

Results

Stamp duty calculation

See full breakdown

Total SDLT due

Below is a breakdown of how the total amount of SDLT was calculated

Up to £0k (Percentage rate 0 %)

Above £0k and up to £0k (Percentage rate 0 %)

Above £0k and up to £0k (Percentage rate 0 %)

Above £0k and up to £0k (Percentage rate 0 %)

Above £0k and up to £0m (Percentage rate 0 %)

Above £om (Percentage rate 0 %)

Please note: This is for illustrative purposes only. The above calculator should not be relied upon when making financial decisions. Please seek advice from a specialist financial provider.

Virtual Tour

IMPORTANT NOTICE

Descriptions of the property are subjective and are used in good faith as an opinion and NOT as a statement of fact. Please make further specific enquires to ensure that our descriptions are likely to match any expectations you may have of the property. We have not tested any services, systems or appliances at this property. We strongly recommend that all the information we provide be verified by you on inspection, and by your Surveyor and Conveyancer.

Fees

Refundable Holding depositCapped at 1 weeks rent
Security DepositCapped at 5 weeks rent for annual rental under £50,000, or 6 weeks rent for annual rental over £50,000
RentThe agreed monthly rent
Changes to tenancyCapped at £50 inc VAT
Early termination chargeNot exceeding the landlord’s financial losses
Late payment of rentInterest of 3% above BoE base rate for each day the rent is late, once it is 14 days overdue
Replacement keysReasonable costs or give the tenant the option to purchase themselves
Utilities, council tax, communication services, TV Licence etcTenants own responsibility unless otherwise stated in contract
Client Money Protection Scheme Membership detailsThe law requires your membership details
Property Redress Scheme Membership detailsThe law requires your membership details