2 Bedroom Cottage  For Sale £325,000

Enchanting cottage

Nestled on Hythe's picturesque hillside

Sitting room

Kitchen/dining room

Garden room

Utility/cloakroom

Two bedrooms

Shower room

Delightful courtyard garden

NO ONWARD CHAIN

EPC Rating D

Council Tax Band B, Folkestone & Hythe

Freehold

DESCRIPTION
This charming end of terrace period cottage is nestled on Hythe's picturesque hillside in a desirable elevated location from where it enjoys stunning views over St Leonards Church, the town and of the sea.

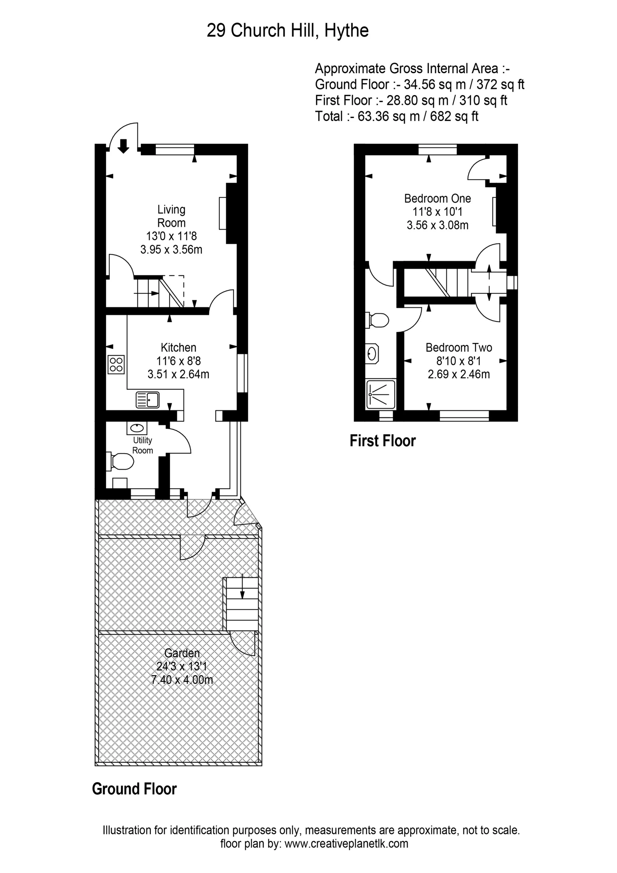
The impeccably presented accommodation comprises a sitting room with a cosy open fireplace, leading through to the well equipped kitchen/dining room. Beyond this is a delightful garden room with door opening onto the courtyard garden and a cloakroom/utility room. On the first floor there are two bedrooms, both enjoying far reaching views over Hythe and of the sea. There is also a 'Jack & Jill' shower room.

The delightfully secluded courtyard garden, which is a particularly attractive feature of the property, enjoys a south westerly aspect and provides the perfect environment for alfresco dining.

For room sizes please refer to the floor plan.

SITUATION
Church Hill forms part of the desirable conservation area on Hythe's picturesque lower hillside, lined with hollyhocks throughout the summer and leads straight down the hill to the town centre. Church Hill leads onto "Great Conduit Street" (Hythe's shortest road) and directly into the bustling High Street, with its range of interesting shops, boutiques, restaurants and cafes, together with 4 supermarkets (including Waitrose, Sainsburys and Aldi), doctors' surgeries, etc. Schools are also excellent with Hythe Bay C of E Primary, Saltwood C of E Primary, St Augustines Catholic Primary & Brockhill Park Performing Arts College all being accessible. There are also two highly regarded Grammar Schools in Folkestone with a regular bus service providing access to both.

The attractive, unspoilt seafront and picturesque Royal Military Canal are a short walk away together with a variety of sports and leisure facilities, including 2 golf courses, swimming pool, cricket, squash, bowls and lawn tennis clubs together with the Hotel Imperial Leisure Centre.

The area is fortunate in having particularly good communications with a main line railway station in Saltwood (Sandling - 2 miles) and access to the M20 (Junction 11 - 4 miles). The High Speed Link rail service to Stratford and St Pancras is available from Folkestone West (5 miles) and Ashford International (10 miles), with journey times of 53 and 37 minutes respectively. Eurostar trains to Paris and Brussels also depart from the latter. The Channel Tunnel Terminal is just over 3 miles away and the ferry port of Dover 12 miles away. (All distances are approximate.)

Location

Floor Plan

Floor Plan

Property Images

Front
Views
Sitting room
Sitting room
Sitting room
Sitting room
Kitchen/dining rm
Kitchen/dining rm
Garden room
Utility/cloakroom
Bedroom 1
Bedroom 1
Bedroom 1
Bedroom 2
Shower room
Shower room
Garden
Garden
Rear
Garden
Setting
Setting

Arrange a Viewing

Arrange a Viewing

Mortgage Calculator

Mortgage Details

Results

Stamp duty calculation

See full breakdown

Total SDLT due

Below is a breakdown of how the total amount of SDLT was calculated

Up to £0k (Percentage rate 0 %)

Above £0k and up to £0k (Percentage rate 0 %)

Above £0k and up to £0k (Percentage rate 0 %)

Above £0k and up to £0k (Percentage rate 0 %)

Above £0k and up to £0m (Percentage rate 0 %)

Above £om (Percentage rate 0 %)

Please note: This is for illustrative purposes only. The above calculator should not be relied upon when making financial decisions. Please seek advice from a specialist financial provider.

IMPORTANT NOTICE

Descriptions of the property are subjective and are used in good faith as an opinion and NOT as a statement of fact. Please make further specific enquires to ensure that our descriptions are likely to match any expectations you may have of the property. We have not tested any services, systems or appliances at this property. We strongly recommend that all the information we provide be verified by you on inspection, and by your Surveyor and Conveyancer.

Fees

Refundable Holding depositCapped at 1 weeks rent
Security DepositCapped at 5 weeks rent for annual rental under £50,000, or 6 weeks rent for annual rental over £50,000
RentThe agreed monthly rent
Changes to tenancyCapped at £50 inc VAT
Early termination chargeNot exceeding the landlord’s financial losses
Late payment of rentInterest of 3% above BoE base rate for each day the rent is late, once it is 14 days overdue
Replacement keysReasonable costs or give the tenant the option to purchase themselves
Utilities, council tax, communication services, TV Licence etcTenants own responsibility unless otherwise stated in contract
Client Money Protection Scheme Membership detailsThe law requires your membership details
Property Redress Scheme Membership detailsThe law requires your membership details