4 Bedroom Detached  Sold STC £950,000

Detached period property

Occupying a generous plot

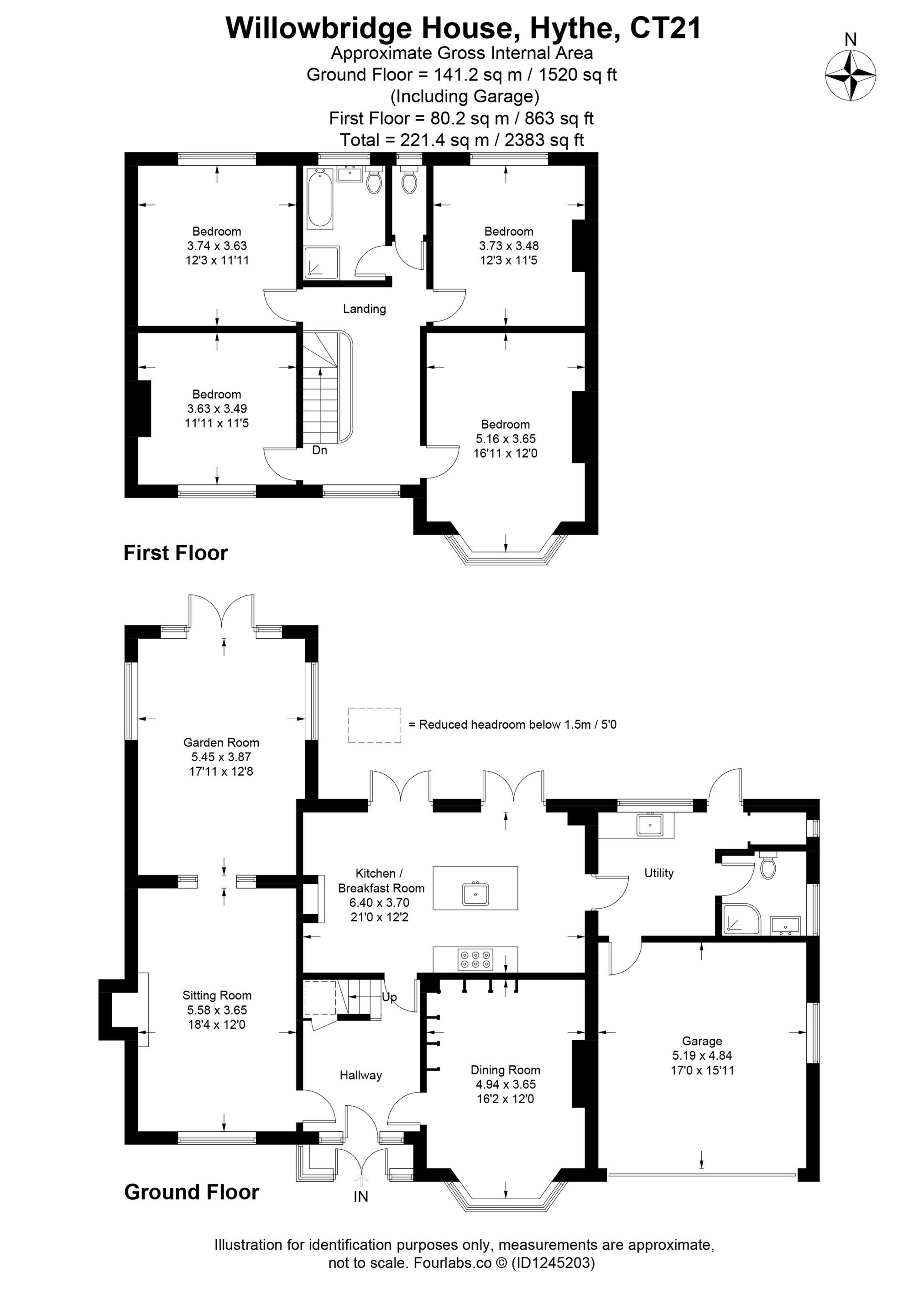
Accommodation totals circa 2383sq ft

Sought after location, adjacent to the banks of the Royal Military Canal

Three reception rooms

Kitchen/breakfast room, utility room

Four double bedrooms

Bathroom & shower room

Secluded gardens & garden studio

Double garage & ample parking

EPC Rating D

Council Tax Band G, Folkestone & Hythe

Freehold

DESCRIPTION
Willowbridge House is an enchanting period property which occupies a generous plot of a little over half of an acre in a sought after location, adjacent to the banks of the Royal Military Canal. The property has been extensively improved by the current owners and is now beautifully presented throughout in a style which compliments the wealth of original features.

The spacious accommodation, which exudes charm and character, is currently arranged to provide an impressive entrance hall with an elegant staircase to the first floor and doors to the dining room, sitting room with cosy open fire and doors leading to a wonderful garden room, and to the beautifully equipped kitchen/breakfast room with two sets of French windows uniting the space with the garden. There is also a utility room and shower room on the ground floor. On the first floor the pretty landing leads to four double bedrooms and a lovely bathroom.

The gardens are a particularly attractive feature of the property being delightfully secluded with ample parking on the driveway to the front which also accesses the integral double garage. The gardens continue to either side of the house meeting at an extensive lawn to the rear with some wonderful specimen trees and a large terrace for alfresco dining with adjoining garden studio and hot tub.

For room sizes please refer to the floor plan.

SITUATION
Green Lane is a coveted location which runs alongside The Royal Military Canal off Scanlons Bridge Road. On level ground, the property is only a short level walk from the town centre and close to bus routes.

The town is well catered for with its 4 supermarkets (including Waitrose, Sainsbury and Aldi) and the bustling High Street with its range of independent shops, boutiques, cafes and restaurants, doctors' surgeries and dentists etc. The attractive and unspoilt seafront is approximately 20 minutes' walk and the Royal Military Canal, with pleasant towpath is opposite the house. There are a wide variety of sporting and leisure facilities in the area including the Hotel Imperial Leisure Centre, cricket, bowling and lawn tennis clubs, 2 golf courses and sailing club. There are excellent primary schools in the vicinity and Brockhill Performing Arts College is nearby. There are two highly regarded Grammar Schools in Folkestone with a regular bus service providing access to both.

Commuting links are excellent with the motorway network (M20 Junction 11) 3 miles distant, main line railway station at Sandling 1.6 miles, the Channel Tunnel Terminal 3.5 miles, the ferry port of Dover 10 miles and Ashford International Passenger Station 12 miles. The High Speed Link is available from both Folkestone (5 miles) and Ashford (12 miles) with journey times to St Pancras of around 53 minutes and 38 minutes respectively (all times and distances are approximate).

Location

Floor Plan

Floor Plan

Property Images

Front
Rear
Sititng room
Sitting room
Sitting room
Garden room
Garden room
Entrance hall
Dining room
Dining room
Kitchen
Kitchen
Dining area
Dining area
Kitchen
Utility room
GF shower room
Enrtance hall
Bedroom
Bedroom
FF landing
Bedroom
Bedroom
Bedroom
Bedroom
Bedroom
Bedroom
Bathroom
Bathroom
Terrace
Terrace
Garden
Garden
Garden
Garden
Garden
Garden
Garden
Studio
Studio
Rear
Driveway

Arrange a Viewing

Arrange a Viewing

This property is currently Sold STC. However, register your details below and we will contact you if it becomes available again.

Mortgage Calculator

Mortgage Details

Results

Stamp duty calculation

See full breakdown

Total SDLT due

Below is a breakdown of how the total amount of SDLT was calculated

Up to £0k (Percentage rate 0 %)

Above £0k and up to £0k (Percentage rate 0 %)

Above £0k and up to £0k (Percentage rate 0 %)

Above £0k and up to £0k (Percentage rate 0 %)

Above £0k and up to £0m (Percentage rate 0 %)

Above £om (Percentage rate 0 %)

Please note: This is for illustrative purposes only. The above calculator should not be relied upon when making financial decisions. Please seek advice from a specialist financial provider.

IMPORTANT NOTICE

Descriptions of the property are subjective and are used in good faith as an opinion and NOT as a statement of fact. Please make further specific enquires to ensure that our descriptions are likely to match any expectations you may have of the property. We have not tested any services, systems or appliances at this property. We strongly recommend that all the information we provide be verified by you on inspection, and by your Surveyor and Conveyancer.

Fees

Refundable Holding depositCapped at 1 weeks rent
Security DepositCapped at 5 weeks rent for annual rental under £50,000, or 6 weeks rent for annual rental over £50,000
RentThe agreed monthly rent
Changes to tenancyCapped at £50 inc VAT
Early termination chargeNot exceeding the landlord’s financial losses
Late payment of rentInterest of 3% above BoE base rate for each day the rent is late, once it is 14 days overdue
Replacement keysReasonable costs or give the tenant the option to purchase themselves
Utilities, council tax, communication services, TV Licence etcTenants own responsibility unless otherwise stated in contract
Client Money Protection Scheme Membership detailsThe law requires your membership details
Property Redress Scheme Membership detailsThe law requires your membership details