2 Bedroom Semi Detached  Sold STC £325,000

Enchanting period cottage

Prime central location

Moments from the beach and a short walk from the High Street

Well presented accommodation

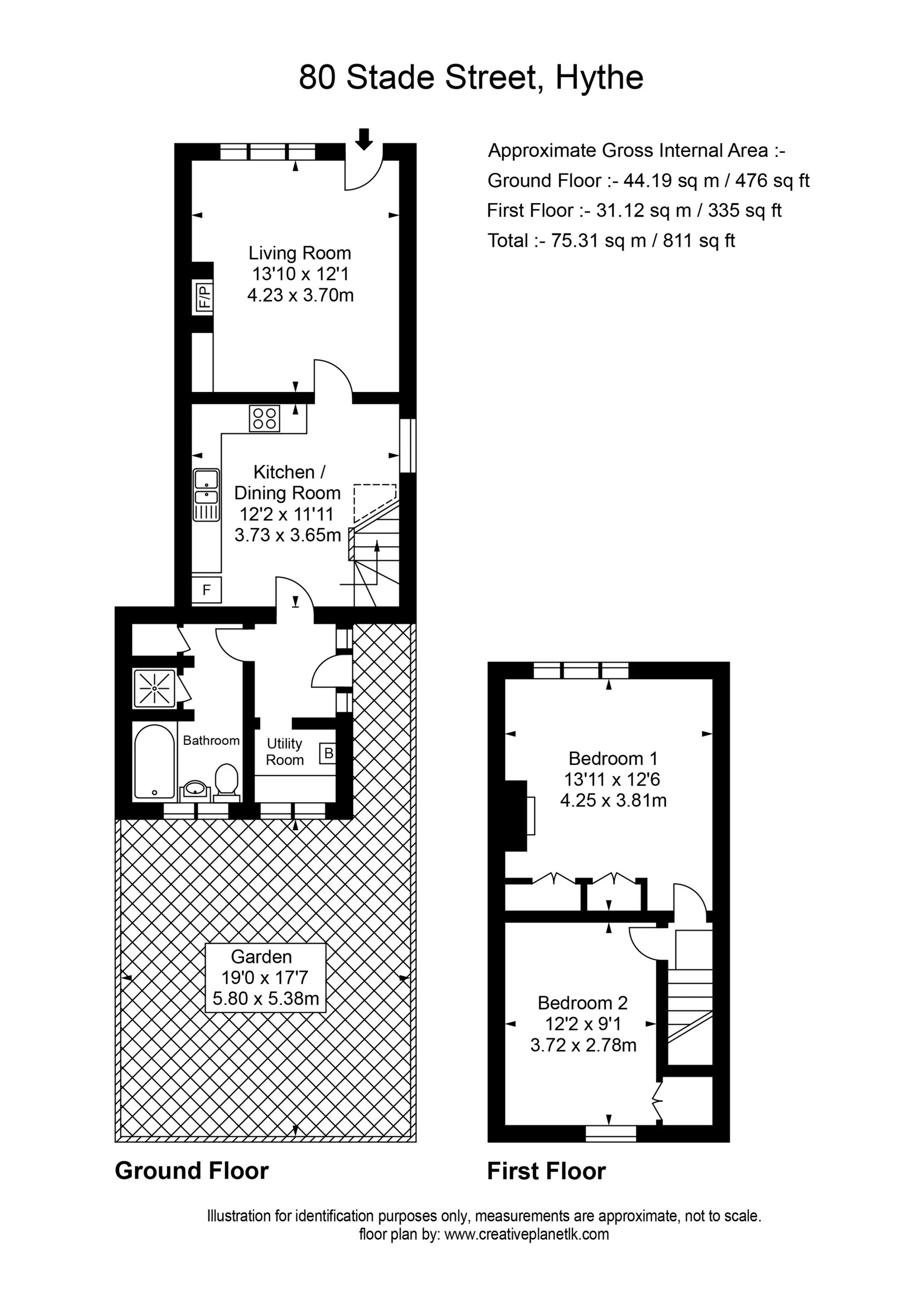
Sitting room

Kitchen/dining room

Bathroom, utility room

Two double bedrooms

Sunny west facing courtyard garden

NO ONWARD CHAIN

Council Tax Band C, Folkestone & Hythe

Freehold

DESCRIPTION
Looks can be deceptive, beyond the pretty façade of this period cottage, the accommodation is deceptively spacious and light and airy throughout. The accommodation includes a sitting room with cosy wood burning stove, a generous kitchen/dining room, rear lobby, large ground floor bathroom and utility room. On the first floor there are two double bedrooms.

To the rear of the house is an attractive stone paved courtyard enjoying a westerly aspect, the perfect environment to enjoy the sunshine, entertain and dine alfresco.

For room sizes please refer to the floor plan.

SITUATION
Forming part of Hythe's desirable conservation area, Stade Street is a particularly sought after location on level ground, to the south of the Royal Military Canal, moments from the seafront and a short, level walk from the bustling High Street with its range of independent shops, boutiques, cafes and restaurants. The town is also well served with 4 supermarkets (including Waitrose, Aldi and Sainsburys. There is a selection of sports and leisure facilities in the vicinity, including tennis, bowls, cricket and squash clubs, water sports, etc. The property is also in the catchment area for Hythe Bay Primary School and only a short walk from it. The larger town of Folkestone is 5 miles distant and the Cathedral City of Canterbury 15 miles.

The area is convenient for communication to London and the Continent with the M20 motorway (Junction 11) 3.5 miles distant, the Channel Tunnel Terminal 3 miles and a mainline railway station at Saltwood around 2.5 miles away. High Speed trains to London St Pancras are available from both Ashford (10 miles) and Folkestone (Central and West) with a journey time of around 53 minutes from Folkestone. (All distances are approximate.)

Location

Floor Plan

Floor Plan

Property Images

Front
Sitting room
Sitting room
Kitchen/dining rm
Kitchen/dining rm
Rear lobby
Bathroom
Utility
Bedroom
Bedroom
Courtyard
Rear

Arrange a Viewing

Arrange a Viewing

This property is currently Sold STC. However, register your details below and we will contact you if it becomes available again.

Mortgage Calculator

Mortgage Details

Results

Stamp duty calculation

See full breakdown

Total SDLT due

Below is a breakdown of how the total amount of SDLT was calculated

Up to £0k (Percentage rate 0 %)

Above £0k and up to £0k (Percentage rate 0 %)

Above £0k and up to £0k (Percentage rate 0 %)

Above £0k and up to £0k (Percentage rate 0 %)

Above £0k and up to £0m (Percentage rate 0 %)

Above £om (Percentage rate 0 %)

Please note: This is for illustrative purposes only. The above calculator should not be relied upon when making financial decisions. Please seek advice from a specialist financial provider.

IMPORTANT NOTICE

Descriptions of the property are subjective and are used in good faith as an opinion and NOT as a statement of fact. Please make further specific enquires to ensure that our descriptions are likely to match any expectations you may have of the property. We have not tested any services, systems or appliances at this property. We strongly recommend that all the information we provide be verified by you on inspection, and by your Surveyor and Conveyancer.

Fees

Refundable Holding depositCapped at 1 weeks rent
Security DepositCapped at 5 weeks rent for annual rental under £50,000, or 6 weeks rent for annual rental over £50,000
RentThe agreed monthly rent
Changes to tenancyCapped at £50 inc VAT
Early termination chargeNot exceeding the landlord’s financial losses
Late payment of rentInterest of 3% above BoE base rate for each day the rent is late, once it is 14 days overdue
Replacement keysReasonable costs or give the tenant the option to purchase themselves
Utilities, council tax, communication services, TV Licence etcTenants own responsibility unless otherwise stated in contract
Client Money Protection Scheme Membership detailsThe law requires your membership details
Property Redress Scheme Membership detailsThe law requires your membership details