Land  For Sale £595,000

Exciting opportunity

Sea facing building plot

Exclusive location on sandgate's picturesque hillside

Stunning sea views

To be sold with the benefit of planning approval

Superb detached contemporary dwelling

NO ONWARD CHAIN

Council Tax , Folkestone & Hythe

Freehold

An exciting opportunity to acquire a virgin plot, already cleared of the original dwelling, totalling circa of 0.3 of an acre in a coveted location on Sandgate's picturesque hillside from where the replacement dwelling will command a stunning southerly panorama of sea and to the coast of France on a clear day. The plot is large enough for the development of two smaller houses if one large house, as designed, is not required (subject to consents and approvals being obtained).

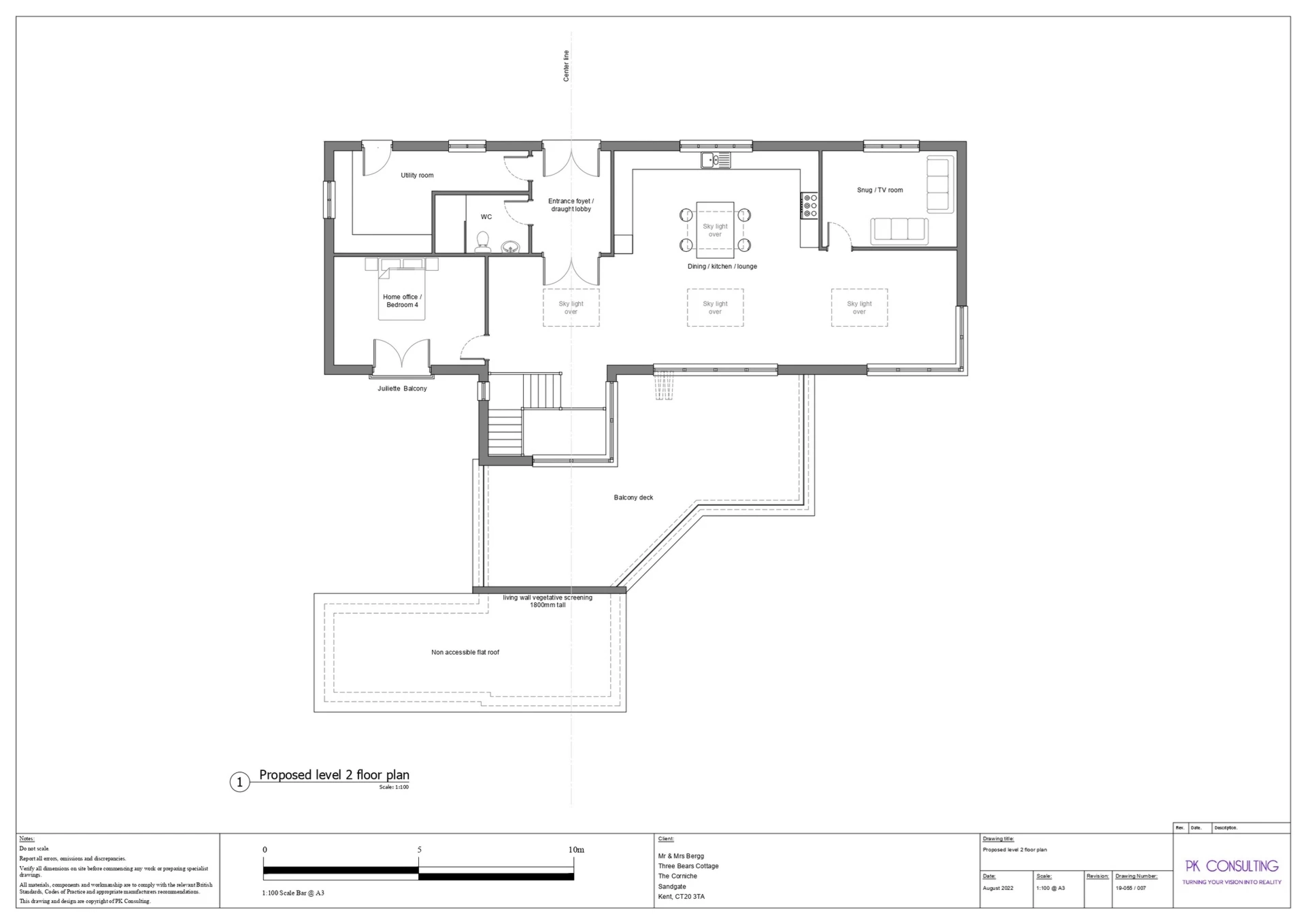
The site is sold with the benefit of planning approval which, although recently lapsed, has been reapplied for under application number 26/0412/FH, for the erection of a superb detached two storey contemporary dwelling which has been considerately designed to compliment and enhance the site and to be considerate of neighbouring dwellings (The site is large enough for two smaller houses). The replacement dwelling has been designed to maximise the stunning southerly aspect with far reaching views of the sea and to the coast of France on a clear day which will be enjoyed from all of the principal rooms. The accommodation will comprise an entrance at first floor level leading to a lavish open plan kitchen/dining/living space designed to compliment a modern lifestyle with expansive glazing opening to a large sea facing roof terrace, a separate snug, cloakroom and the fourth bedroom. There is also a shower room and utility room on this level. The ground floor comprises a generous part double height hallway leading to three double bedrooms, each with en-suites, a gym and an office. The property will also benefit from off street parking and generous gardens, and for which plans have been drawn by Ivy & Whyte of Hythe. The original plans can be viewed at www.folkestone-hythe.gov.uk using planning reference 23/1832/FH.

Location

Property Images

Proposed build
Proposed build
Views
Plan
Plan
Site Plan
PProposed build
Proposed build
Proposed build
Proposed build
Site

Arrange a Viewing

Arrange a Viewing

Mortgage Calculator

Mortgage Details

Results

Stamp duty calculation

See full breakdown

Total SDLT due

Below is a breakdown of how the total amount of SDLT was calculated

Up to £0k (Percentage rate 0 %)

Above £0k and up to £0k (Percentage rate 0 %)

Above £0k and up to £0k (Percentage rate 0 %)

Above £0k and up to £0k (Percentage rate 0 %)

Above £0k and up to £0m (Percentage rate 0 %)

Above £om (Percentage rate 0 %)

Please note: This is for illustrative purposes only. The above calculator should not be relied upon when making financial decisions. Please seek advice from a specialist financial provider.

IMPORTANT NOTICE

Descriptions of the property are subjective and are used in good faith as an opinion and NOT as a statement of fact. Please make further specific enquires to ensure that our descriptions are likely to match any expectations you may have of the property. We have not tested any services, systems or appliances at this property. We strongly recommend that all the information we provide be verified by you on inspection, and by your Surveyor and Conveyancer.

Fees

Refundable Holding depositCapped at 1 weeks rent
Security DepositCapped at 5 weeks rent for annual rental under £50,000, or 6 weeks rent for annual rental over £50,000
RentThe agreed monthly rent
Changes to tenancyCapped at £50 inc VAT
Early termination chargeNot exceeding the landlord’s financial losses
Late payment of rentInterest of 3% above BoE base rate for each day the rent is late, once it is 14 days overdue
Replacement keysReasonable costs or give the tenant the option to purchase themselves
Utilities, council tax, communication services, TV Licence etcTenants own responsibility unless otherwise stated in contract
Client Money Protection Scheme Membership detailsThe law requires your membership details
Property Redress Scheme Membership detailsThe law requires your membership details