3 Bedroom Detached  Sold STC £485,000

Detached chalet house

Sought after location

Well presented accommodation

2/3 reception rooms

Kitchen/breakfast room, utility room

2/3 bedrooms

Shower room & bathroom

Pretty rear garden

Garage & off-road parking

NO ONWARD CHAIN

EPC Rating D

Council Tax Band E, Folkestone & Hythe

Freehold

DESCRIPTION
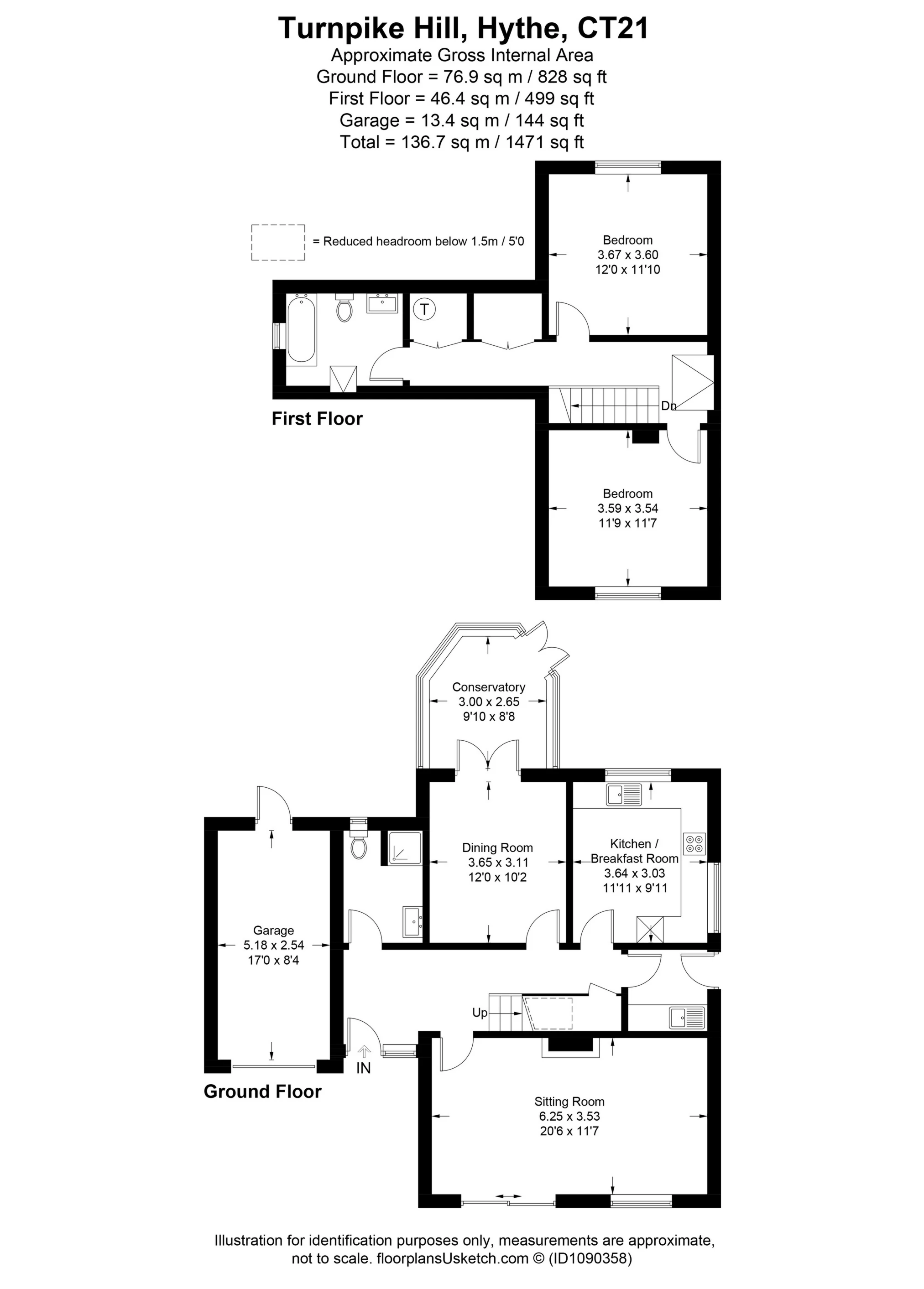
This well situated detached chalet house enjoys attractively presented accommodation which is of particularly comfortable proportions. This includes a welcoming entrance hall leading to the generous sitting room, dining room (originally designed for use as a third bedroom in conjunction with the ground floor shower room) which leads to the pretty conservatory, well fitted kitchen/breakfast room and utility room. On the first floor there are two double bedrooms, one enjoying views to the sea, and a bathroom. There is also a considerable amount of storage cupboards.

The pretty garden to the front of the house incorporates a driveway providing off street parking and access to the integral garage. The garden to the rear is delightfully secluded and provides a very pleasant environment in which to relax and dine alfresco.

For room sizes please refer to the floor plan.

SITUATION
Turnpike Hill is a highly desirable residential area on the lower hillside and close to Saltwood, just over half-a-mile from the town centre and with bus routes to the surrounding areas. The town is well catered for with its 4 supermarkets (including Waitrose, Sainsbury and Aldi), bustling high street with a diverse range of independent shops, boutiques, cafes, restaurants, doctors' surgeries and dentists etc. The attractive and unspoilt seafront is approximately 20 minutes' walk and the Royal Military Canal, with pleasant towpath is nearby. There is a wide variety of sporting and leisure facilities in the area including the Hotel Imperial Leisure Centre, cricket, bowling and lawn tennis clubs, 2 golf courses and sailing club. There are two good primary schools in the vicinity and a Performing Arts School for ages 11 - 18. There are boys' and girls' grammar schools in Folkestone which are served by a free bus service from Hythe.

Hythe is very conveniently located for easy access to the M20, Channel Tunnel Terminal, ferry port of Dover, etc.. Sandling main line railway station, approximately 2 miles away on the outskirts of Saltwood, offers regular commuter services to the City. (All distances are approximate). High Speed Link services to St Pancras are available at Folkestone West and Ashford International.

Location

Floor Plan

Floor Plan 1

Property Images

Front
Rear
Sitting room
Sitting room
Sitting room
Kitchen/breakfast rm
Dining room
FF Landing
Bedroom 1
Bedroom 2
Bathroom
Conservatory
Garden
Garden
Garden
Garden

Arrange a Viewing

Arrange a Viewing

This property is currently Sold STC. However, register your details below and we will contact you if it becomes available again.

Mortgage Calculator

Mortgage Details

Results

Stamp duty calculation

See full breakdown

Total SDLT due

Below is a breakdown of how the total amount of SDLT was calculated

Up to £0k (Percentage rate 0 %)

Above £0k and up to £0k (Percentage rate 0 %)

Above £0k and up to £0k (Percentage rate 0 %)

Above £0k and up to £0k (Percentage rate 0 %)

Above £0k and up to £0m (Percentage rate 0 %)

Above £om (Percentage rate 0 %)

Please note: This is for illustrative purposes only. The above calculator should not be relied upon when making financial decisions. Please seek advice from a specialist financial provider.

Virtual Tour

IMPORTANT NOTICE

Descriptions of the property are subjective and are used in good faith as an opinion and NOT as a statement of fact. Please make further specific enquires to ensure that our descriptions are likely to match any expectations you may have of the property. We have not tested any services, systems or appliances at this property. We strongly recommend that all the information we provide be verified by you on inspection, and by your Surveyor and Conveyancer.

Fees

Refundable Holding depositCapped at 1 weeks rent
Security DepositCapped at 5 weeks rent for annual rental under £50,000, or 6 weeks rent for annual rental over £50,000
RentThe agreed monthly rent
Changes to tenancyCapped at £50 inc VAT
Early termination chargeNot exceeding the landlord’s financial losses
Late payment of rentInterest of 3% above BoE base rate for each day the rent is late, once it is 14 days overdue
Replacement keysReasonable costs or give the tenant the option to purchase themselves
Utilities, council tax, communication services, TV Licence etcTenants own responsibility unless otherwise stated in contract
Client Money Protection Scheme Membership detailsThe law requires your membership details
Property Redress Scheme Membership detailsThe law requires your membership details