2 Bedroom Semi Detached  For Sale £335,000

Situated on a peaceful cul-de-sac

An attractively presented semi detached chalet house

Offering well proportioned accommodation

Much improved by the current owners

Generous sitting room

Smartly fitted kitchen

Two double bedrooms

Contemporary bathroom`

Secluded south west facing garden

Garage and ample parking

EPC Rating C

Council Tax Band C, Folkestone & Hythe

Freehold

DESCRIPTION
In a sought after location, this well proportioned semi detached family home has been much improved by the current owners since it was purchased and now provides attractively presented accommodation of particularly comfortable proportions.

The accommodation includes a useful entrance vestibule, perfect for shedding coats and boots after walks in the nearby countryside, leading to a welcoming entrance hall. There is a generous sitting room to the front and a smartly fitted kitchen to the rear together with the bathroom. on the first floor there are two double bedrooms.

To the front of the house there is ample parking on the driveway which also provides access to the detached garage. To the rear of the house the generous garden enjoys a south westerly aspect with an expanse of lawn, patio and vegetable garden.

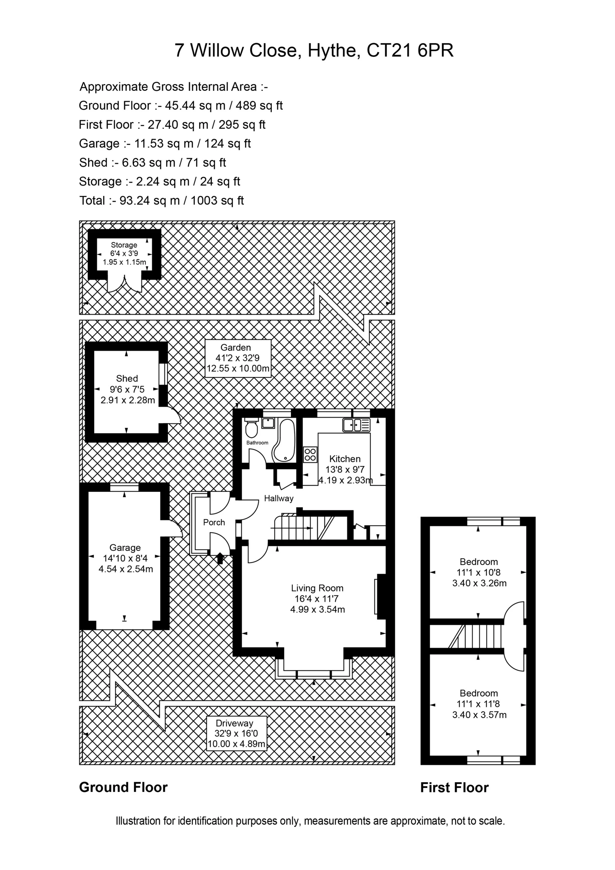
For room sizes please refer to the floorplan.

SITUATION
The property is situated on a peaceful cul-de-sac in a desirable residential location approximately a mile-and-a-half to the west of Hythe town centre, with a bus route nearby for easy access to Hythe, Folkestone, Ashford, New Romney, etc. The Royal Military Canal, cycle path and local beauty spot "The Roughs" with pleasant walks, picnic areas, etc., are only a short walk away.

Hythe is a well-served town with a bustling High Street, 4 supermarkets (including Waitrose, Sainsbury and Aldi) and range of independent shops and restaurants. There are two golf courses and a Leisure Centre at the Hotel Imperial, all within easy reach and there is a variety of other sports and leisure facilities in the vicinity.

The M20 (Junction 13) and Channel Tunnel Terminal are both approximately 4 miles distant and there is a mainline railway station at Saltwood, approximately 3 miles away. The High Speed Link to London St Pancras is available from Ashford International Station with a journey time of approximately 37 minutes.

Location

Floor Plan

Floor Plan 1

Property Images

Front
Rear
Garden
Sitting room
Sitting room
Dining
Entrance hall
Kitchen
Kitchen
Kitchen
Bathroom
Bedroom
Bedroom
Garden
Garden
Front
Rear
Garden
The cul-de-sac

Arrange a Viewing

Arrange a Viewing

Mortgage Calculator

Mortgage Details

Results

Stamp duty calculation

See full breakdown

Total SDLT due

Below is a breakdown of how the total amount of SDLT was calculated

Up to £0k (Percentage rate 0 %)

Above £0k and up to £0k (Percentage rate 0 %)

Above £0k and up to £0k (Percentage rate 0 %)

Above £0k and up to £0k (Percentage rate 0 %)

Above £0k and up to £0m (Percentage rate 0 %)

Above £om (Percentage rate 0 %)

Please note: This is for illustrative purposes only. The above calculator should not be relied upon when making financial decisions. Please seek advice from a specialist financial provider.

IMPORTANT NOTICE

Descriptions of the property are subjective and are used in good faith as an opinion and NOT as a statement of fact. Please make further specific enquires to ensure that our descriptions are likely to match any expectations you may have of the property. We have not tested any services, systems or appliances at this property. We strongly recommend that all the information we provide be verified by you on inspection, and by your Surveyor and Conveyancer.

Fees

Refundable Holding depositCapped at 1 weeks rent
Security DepositCapped at 5 weeks rent for annual rental under £50,000, or 6 weeks rent for annual rental over £50,000
RentThe agreed monthly rent
Changes to tenancyCapped at £50 inc VAT
Early termination chargeNot exceeding the landlord’s financial losses
Late payment of rentInterest of 3% above BoE base rate for each day the rent is late, once it is 14 days overdue
Replacement keysReasonable costs or give the tenant the option to purchase themselves
Utilities, council tax, communication services, TV Licence etcTenants own responsibility unless otherwise stated in contract
Client Money Protection Scheme Membership detailsThe law requires your membership details
Property Redress Scheme Membership detailsThe law requires your membership details